Upper Left of Balcony
Entry View (Left) - Front Wall Inside (Right)
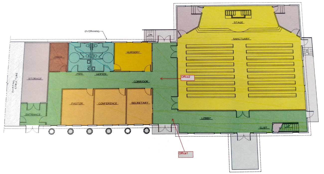
Basic Floor Plan
Rendered C.A.D. Picture